自动补水排气定压装置选型及安装使用
时间:2014/9/12 来源:浙江扬子江泵业有限公司
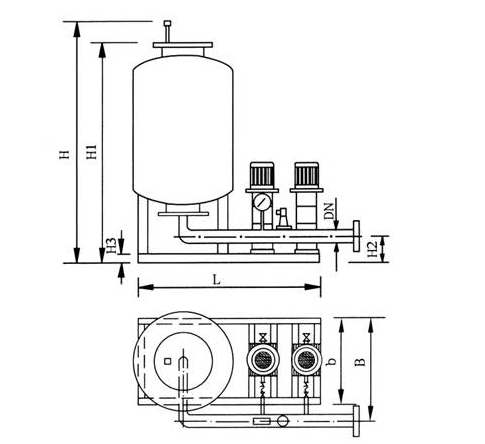
自动稳压补水装置是为供热、采暖、中央空调等系统作自动补水,维护系统压力而设计研制的。它由隔膜式压力罐、水泵、控制箱、底架、压力感应装置、管道、阀门等组合而成,可广泛应用于高层建筑、小区供水、工矿企业的上述系统中。
气室按工艺设计充入预压所需的氮气,装置连接系统,安装完毕,打开本装置与系统之间的阀门。当系统水温的变化引起水的容积膨胀或者收缩时,由隔膜罐自行予以吸入或吐出,使系统压力稳定在予先设定的压力上下限的区域里。如果系统由于漏水或其它原因引起压力下降至予设压力的下限时,由电接点压力继电器动作启动稳压泵,使之向系统供水,直至压力达到所设定的压力上限值时止。若系统压力超过设定的高压力值时,安全阀自行向软水箱或地沟泄水降压,如此反复,以维持系统的压力平衡。
产品特点
1、密封性能好,一次充气,可常年使用
2、安装场地不受高度限制
3、配置机动灵活,组合安装快速,装置简便紧凑,占地面积小
4、由于是水气分离,在全封闭状态下保证了水质无污染
5、能有效地消除大部分水锤和管道噪音现象
6、占地面积少,投资省,安装快,操作管理和维修简便。
7、全自动控制、运行可靠。
适用范围
在供热采暖中央空调系统中取代膨胀水箱并具自动补水作用,在多层或高层民用和公共建筑的生活供水,可代替高位水箱或水塔.
技术规格

单罐单泵
|
型号 |
DLDY600-L |
DLDY800-L |
DLDY1000-L |
DLDY1200-L |
DLDY1400-L |
DLDY1600-L |
DLDY1800-L |
|
|
H |
2205 |
2645 |
2950 |
3305 |
3405 |
3790 |
3995 |
|
|
H1 |
1930 |
2370 |
2630 |
3030 |
3130 |
3515 |
3720 |
|
|
H2 |
200 |
200 |
220 |
250 |
250 |
250 |
250 |
|
|
H3 |
80 |
80 |
100 |
100 |
100 |
100 |
100 |
|
|
L |
1050 |
1200 |
1500 |
1620 |
1740 |
1950 |
2300 |
|
|
b |
600 |
800 |
860 |
650 |
800 |
950 |
1250 |
|
|
B |
650 |
900 |
1000 |
790 |
940 |
1090 |
1390 |
|
|
DN |
50 |
50 |
50 |
80 |
80 |
80 |
100 |
|
|
重量0.6Mpa kg 1.0Mpa |
250 303 |
422 649 |
580 887 |
801 1191 |
954 1482 |
1316 1997 |
1504 2283 |
|
|
水泵型号 |
0.3Mpa KW |
CHL2-40 0.55 |
CHL2-40 0.55 |
CHL2-40 0.55 |
CHL4-40 0.55 |
CHL4-40 0.55 |
CHL4-40 0.55 |
CHL4-40 0.55 |
|
0.6Mpa KW |
CDL2-70 0.75 |
CDL2-70 0.75 |
CDL2-70 0.75 |
CDL4-80/7 1.5 |
CDL4-80/7 1.5 |
CDL4-80/7 1.5 |
CDL4-80/7 1.5 |
|
|
1.0Mpa KW |
CDL2-130 1.5 |
CDL2-130 1.5 |
CDL2-130 1.5 |
CDL4-120 2.2 |
CDL4-120 2.2 |
CDL4-120 2.2 |
CDL4-120 2.2 |
|
单罐双泵
|
型号 |
DLDY600-L |
DLDY800-L |
DLDY1000-L |
DLDY1200-L |
DLDY1400-L |
DLDY1600-L |
DLDY1800-L |
|
|
H |
2205 |
2645 |
2950 |
3305 |
3405 |
3790 |
3995 |
|
|
H1 |
1930 |
2370 |
2630 |
3030 |
3130 |
3515 |
3720 |
|
|
H2 |
200 |
200 |
220 |
250 |
250 |
250 |
250 |
|
|
H3 |
80 |
80 |
100 |
100 |
100 |
100 |
100 |
|
|
L |
1300 |
1500 |
1800 |
1920 |
2090 |
2300 |
2650 |
|
|
b |
600 |
800, |
860 |
860 |
900 |
950 |
1250 |
|
|
B |
650 |
900 |
1000 |
1200 |
1350 |
1550 |
1700 |
|
|
DN |
50 |
50 |
50 |
80 |
80 |
80 |
100 |
|
|
重量0.6Mpa kg 1.0Mpa |
330 383 |
542 769 |
700 1007 |
991 1381 |
1144 1618 |
1506 2187 |
1694 2437 |
|
|
水泵型号 |
0.3Mpa KW |
CHL2-40 0.55 |
CHL2-40 0.55 |
CHL2-40 0.55 |
CHL4-40 0.55 |
CHL4-40 0.55 |
CHL4-40 0.55 |
CHL4-40 0.55 |
|
0.6Mpa KW |
CDL2-70 0.75 |
CDL2-70 0.75 |
CDL2-70 0.75 |
CDL4-80/7 1.5 |
CDL4-80/7 1.5 |
CDL4-80/7 1.5 |
CDL4-80/7 1.5 |
|
|
1.0Mpa KW |
CDL2-130 1.5 |
CDL2-130 1.5 |
CDL2-130 1.5 |
CDL4-120 2.2 |
CDL4-120 2.2 |
CDL4-120 2.2 |
CDL4-120 2.2 |
|
注:两台水泵为一用一备。

双罐双泵
|
型号 |
DLDY600-L |
DLDY800-L |
DLDY1000-L |
DLDY1200-L |
DLDY1400-L |
DLDY1600-L |
DLDY1800-L |
|
|
H |
2205 |
2645 |
2905 |
3305 |
3405 |
3790 |
3995 |
|
|
H1 |
1930 |
2370 |
2630 |
3030 |
3130 |
3515 |
3720 |
|
|
H2 |
200 |
200 |
220 |
250 |
250 |
250 |
250 |
|
|
H3 |
80 |
80 |
100 |
100 |
100 |
100 |
100 |
|
|
L |
2250 - |
2700 - |
3300
|
3370 3570 |
3740 3940 |
4250 4450 |
5000 5200 |
|
|
b |
600 |
800 |
860 |
800 |
900 |
950 |
1250 |
|
|
B |
650 |
900 |
1000 |
865 |
990 |
1090 |
1390 |
|
|
DN |
65 |
80 |
80 |
100 |
100 |
125 |
125 |
|
|
重量0.6Mpa kg 1.0Mpa |
482 696 |
849 1303 |
1167 1781 |
1617 2397
|
1922 2869 |
2640 4000 |
3020 4570 |
|
|
水泵型号 |
0.3Mpa KW |
CHL2-40 0.55 |
CHL2-40 0.55 |
CHL4-40 0.75 |
CHL4-40 0.75 |
CHL4-40 0.75 |
CHL4-40 0.75 |
CHL8-30 1.1 |
|
0.6Mpa KW |
CDL2-70 0.75 |
CDL2-70 0.75 |
CDL4-80/7 1.5 |
CDL4-80/7 1.5 |
CDL4-80 1.5 |
CDL4-80 1.5 |
CDL8-60 2.2 |
|
|
1.0Mpa KW |
CDL2-130 1.5 |
CDL2-130 1.5 |
CDL4-120 2.2 |
CDL4-120 2.2 |
CDL4-120 2.2 |
CDL4-120 2.2 |
CDL8-100 4.0 |
|

|
安装与使用 |






